The Conception of Idea & Creation
Project 1: Case Study of Building Services in Public Buildings
​
In a group of 5, we have to perform a case study on building services systems applied and installed in multi-storey buildings' design, such as fire protection system, air conditioning system, mechanical ventilation system and mechanical transportation system. Students are introduced to the systems that are utilized in public buildings that cater to many different types of users. This exercise requires students to develop their own understanding in the application of building services to make a building technically functional. Detailed information regarding the different systems shall be documented using images, sketches or diagrams and the findings are to be submitted in the form of an A4 report.
In addition to that, students were required to produce a videologue for the final submission.
​
The main objective of the project is:
1. To introduce students to the basic principles, process and equipment of various building services systems found in buildings ''(experiential learning).
2. To expose students to the integration of various building services systems in a building.
3. To allow students to demonstrate their understanding of building services systems and statutory requirements.
4. To develop students' understanding and familiarization in applying the correct graphic communications according to the required standards (MS1184).
​​
​
​
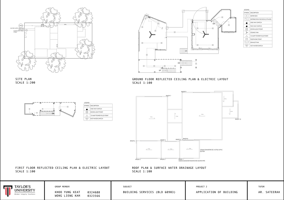
Project 2A: Application of Building Services
​
Students were required to form groups of 2 members and apply building service systems into one of the chosen students Semester 3 studio project. Students were required to demonstrate their understanding by producing drawings and diagrams for the electrical supply system, cold and hot water supply system, sewerage and sanitary system as well as rainwater drainage system.
​
In addition to that, students were also required to document the components, fittings and fixtures used within each system in a B5-sized catalogue.
​​
​
​

